Balança de Fluxo – FlowMeter

O Flowmeter BRX é projetado para medir e controlar o fluxo de materiais pulverizados e granulares em circuitos fechados, alimentados por Airslide, Rosca Dosadora e Válvula Rotativa.

Características

Aplicações

O Flowmeter BRX é projetado para medir e controlar o fluxo de materiais pulverizados e granulares em circuitos fechados, alimentados por Airslide, Rosca Dosadora e Válvula Rotativa.

As principais aplicações do Flowmeter são para alimentação de Farinha para fornos de cimenteiras, dosagem de cinzas e pó de filtros, medição do fluxo no retorno de separadores e pesagem em batelada para carregamento ferroviário e rodoviário.

Instalações

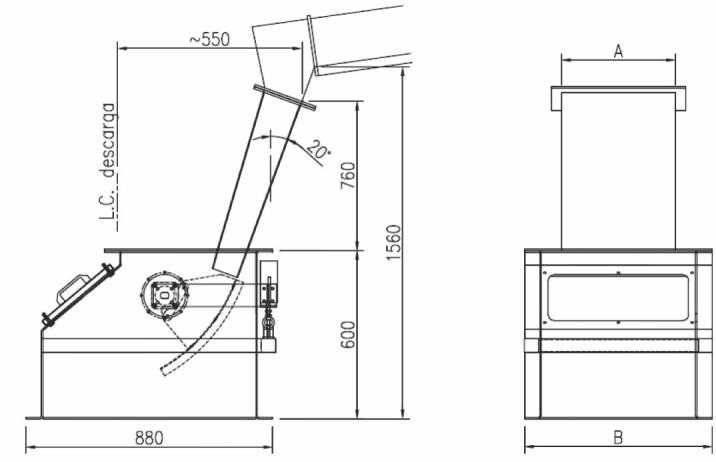
O Flowmeter BRX é instalado em linhas de fluxo de material existentes, bastando somente fazer uma simples adaptação. Por não trabalhar com motores e sensores, a instalação se torna mais rápida e com menos quantidades de cabos e calhas. O Flowmeter BRX já vem testado e travado de fábrica e seu sistema de transmissão para a célula de carga, por rolamentos, minimiza eventuais danos no seu transporte.

Princípio de Funcionamento

A placa de impacto, situada dentro do Flowmeter, receberá o impacto do material que é direcionado pela calha superior. Este impacto exercerá uma força sobre a placa e esta força irá fazer com que a placa faça uma torção no seu eixo de sustentação. Este eixo está preso a um sistema de transmissão e irá levar este esforço para a célula.

As dimensões/ângulos do chute de entrada e placa de medição garantem a velocidade e o impacto para uma medição precisa. A principal característica da balança BRX é o projeto robusto e dedicado a cada aplicação, garantindo a correta aquisição do peso que em conjunto com uma célula de carga de alta performance e confiabilidade, determinam a precisão do equipamento.

BRX Sistemas © Todos os Direitos Reservados 2024. Desenvolvido por Estúdio RN.